设为首页添加收藏

您好! 欢迎来到U8国际有限公司

微博
扫码关注官方微博
微信
扫码关注官方微信
电话:0734-8853689

您的位置: 主页 > U8国际新闻资讯 > 行业动态
U8国际新闻资讯
公司新闻
行业动态
技术资讯
行业动态

华润外滩瑞府(营销中心)官方网站-外滩瑞府销售中心(售楼处)-楼盘欢迎您-地址-价格-户型-小区环境-楼盘详情-交房时间-周边配套-售楼处电话

发布日期:2026-01-06 来源: 网络 阅读量(

  U8.COM·(中国区)有限公司官网华润外滩瑞府(营销中心)官方网站-外滩瑞府销售中心(售楼处)-外滩瑞府楼盘欢迎您-地址-价格-户型-小区环境-楼盘详情-交房时间-周边配套-售楼处电线

  虹口北外滩核心 「外滩瑞府」二批将推建面约120-330㎡无界大宅!首开劲销24.8亿!外滩1.2公里!虹口内环内的外滩瑞府,就在这个“金九”,外滩上演了一场现象级的热销。首开119套房源全部售罄,去化率100%,劲销24.8亿+。

  首开即罄,是市场对外滩瑞府作品价值的至高共识,亦是外滩传世奢宅的华丽序章。

  传奇未完,美好待续。外滩瑞府二批次新品即将载誉而来,更将首次揭幕项目的重磅藏品--建面约240㎡「摘星平墅」。

  由全球知名设计师吴滨先生亲自主笔,于外滩云端之上,为全球塔尖人物量身定制一席无界视野的“摘星”大宅。

  它不仅是空间的极致演绎,更是身份与品位的象征,一部真正意义上的“隐奢”藏品,注定只为少数人私有。未来期待与远见者再度相逢,共启外滩生活的崭新篇章。

  外滩瑞府售楼处电话:【售楼中心热线】外滩瑞府营销中心热线外滩瑞府售楼处地址,外滩瑞府售楼处预约看房热线:[开发商认证]

  地块去年11月27日,华润置地以总价51.36亿元获取,成交楼面价92934元/平方米,溢价率11.97%,地块中小套型占比40%,装修标准4000元/㎡!

  智昭负责会所和架空层设计,他是2023 AD 100 中国最具影响力建筑和室内设计师,代表作翠湖天地、汤臣一品;TROP操刀艺文景观设计;室内由W.DESIGN无间设计、李益中精琢...这支曾塑造多个城市封面的大师团队,聚集在外滩瑞府,共筑外滩新一代标杆住宅。

  。此次外滩瑞府落子外滩1公里核心圈,正是华润对「战略稀缺性」的极致践行:非核心不选,非未来不立

  由此,便有了“风貌→幕墙→冠冕”的立体生长美学立面,风貌底盘+秩序感极强的通透立面,昭示性极强!

  , 它如同一幅流动的巨幕画框,不仅最大限度引光入室,更实现了 “移步易景、框景成画”的建筑美学。

  室内外空间界限被温柔消弭,无论是社区内的精致园林、活力场景,还是远方的都市天际线,都成为生活中触手可及、瞬息变幻的风景。

  ,社区大门以约50米长典雅精致市政延展面宣告不凡气度!先锋艺文迎宾区仪式感十足!这便是一场城市精英到生活艺术家的精神转场。上海外滩瑞府售楼处电话/地址☎:(预约热线)√√

  ,这里不仅是满足全龄社交、商务会客与儿童探索的多功能活力场域,更以精心雕琢的轻度假美学,让每一次归家都成为步入度假胜地的仪式。当暮色浸染天际线,漫步于绿意环抱的公园小径,耳畔是潺潺水声与孩童欢笑,疲惫顷刻消融于草木芬芳与柔风暖光之中。

  ,将传世名作解构为可游可赏的立体生态空间!有梵高的星空水苑、莫奈的睡莲水湾、马奈的日光草坪、塔贝尔的社交花园、雷阿诺的缤纷花园以及调色板儿童乐园……

  每一处花园皆以自然为画布、生活为颜料,原生乔木与艺术草甸形成柔韧界面,流线型步道如画笔游走其间,这不再只是社区绿地,而是一座生长中的露天艺术馆,让印象派的浪漫主义在每一天的晨曦暮霭中鲜活重生。

  连通所有楼栋,移步易景。看似简单的设计,解决了高频生活痛点,从“实用配置”升维为居住尊严与人文关怀的象征,让日常通勤成为享受,让社区在风雨中依然温暖有序,实现归家更从容~

  以优雅流畅的线条融入天际视野,不仅是为业主提供专业级畅游体验的运动场所,更成为静享私密时光的水境。

  匠心营造的架空层空间同样具备国际化品味,打造了更容易停留的空间:一处是融合艺术格调与舒适氛围的多功能泛会客厅,为邻里社交、商务洽谈或静谧阅读提供优雅场域;另一处则配备了前沿科技的智能健身空间,满足业主全天候、多元化的健康管理需求。

  上海外滩瑞府售楼处电话/地址☎:(预约热线、推售信息上海外滩瑞府售楼处电话/地址☎:(预约热线)√√

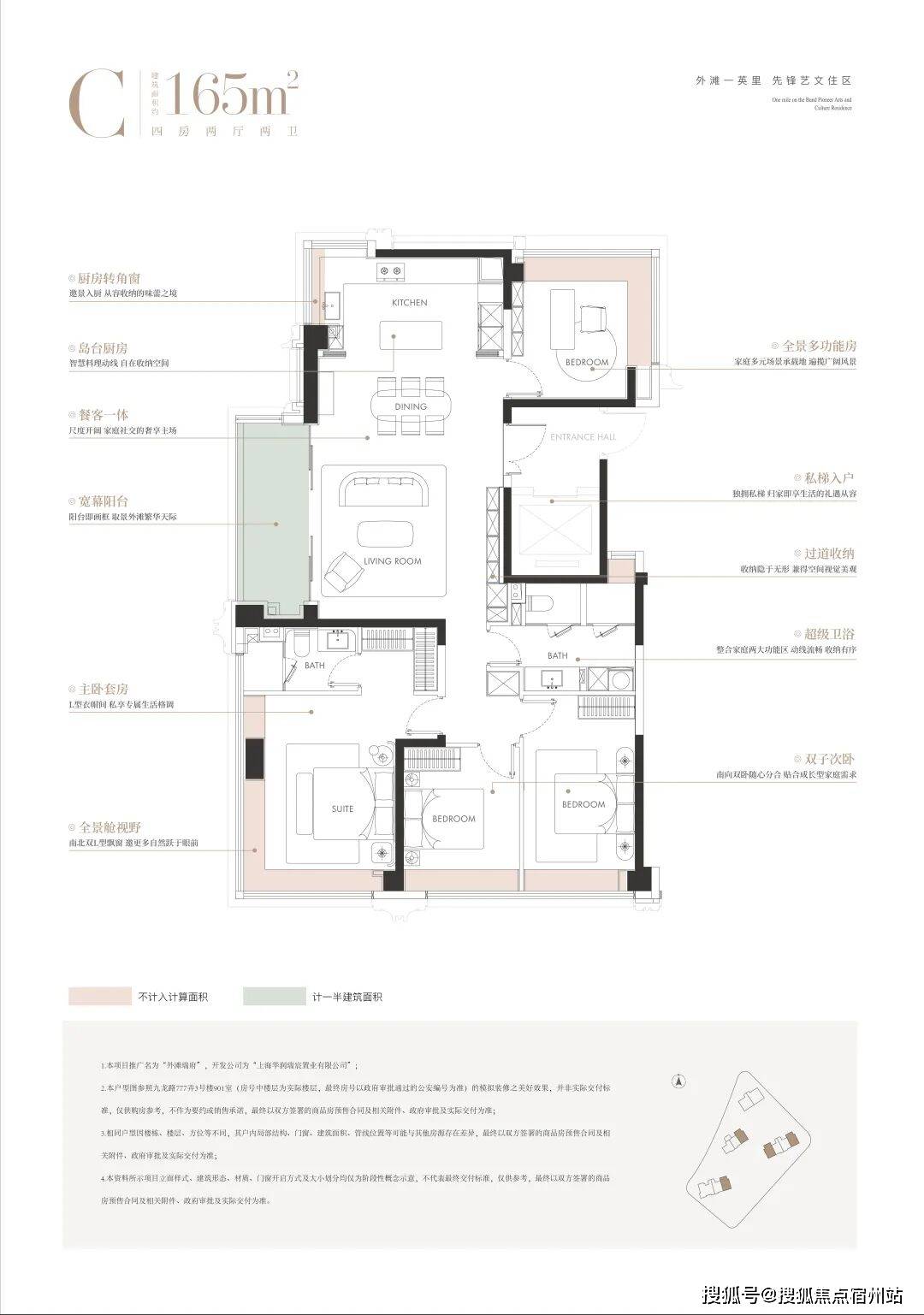
  南北通透全明户型,三开间朝南设计;“S”墙收纳、室内5个飘窗延伸空间,据说每个卧室开间尺度均达到3米及以上,完全满足改善居住的收纳需求!主卧套房设计,隐私性较强,室内空间尺度优秀!

  上海外滩瑞府售楼处电话/地址☎:(预约热线)√√样板间则是采用香奈儿风格法式经典搭配,尽显法式优雅~

  !转角抽屉收纳、下拉栏顶部设计反光镜避免视觉死角、轨道插座置于岛台侧墙不占台面空间等等,众多收纳细节思量到位,匠心独运!

  值得一提的是,项目在看不见的地方偷偷发力!厨房三重排烟的处理、原本应在设备平台的转移至楼层公区不遮挡厨房窗景、外墙厚度200厚混凝土墙+100厚的保温层隔绝噪音等等

  还有墙面的细节处理,电视背景墙为皮革硬包+深色木饰面,不惜成本将金属条嵌入墙内

  上海外滩瑞府售楼处电话/地址☎:(预约热线)√√虹口北外滩核心 「外滩瑞府」二批将推建面约120-330㎡无界大宅!首开劲销24.8亿!外滩1.2公里!虹口内环内的外滩瑞府,就在这个“金九”,外滩上演了一场现象级的热销。首开119套房源全部售罄,去化率100%,劲销24.8亿+。

  首开即罄,是市场对外滩瑞府作品价值的至高共识,亦是外滩传世奢宅的华丽序章。

  它不仅是空间的极致演绎,更是身份与品位的象征,一部真正意义上的“隐奢”藏品,注定只为少数人私有。未来期待与远见者再度相逢,共启外滩生活的崭新篇章。

  外滩瑞府售楼处电话:【售楼中心热线】外滩瑞府营销中心热线外滩瑞府售楼处地址,外滩瑞府售楼处预约看房热线:[开发商认证]

  三间卧室朝南设计的平权户型,老人、小孩均可享受南向采光;厨房转角窗、主卧套房、北向书房均配置270度转角飘窗,景观视野相当不错!

  次卫四分离设计,相当人性化~上海外滩瑞府售楼处电话/地址☎:(预约热线)√√拥独立入户空间

  同样近乎等面宽的卧室尺度,让每个家庭成员都能拥有独立且舒适的休憩领地,三卧朝南的布局,

  让阳光成为所有人的平等馈赠,没有谁要为“主次”牺牲采光权。而“大”还体现在公共空间的开阔,岛台厨房、餐厅、客厅与阳台动线流畅,二胎共同玩耍也绰绰有余。约270°视野的贯穿更是锦上添花,主卧、北向次卧、厨房的约270°转角飘窗

  主卧套房的L型衣帽间与卫生间,公卫四分离设计,在保证“大”尺度的同时,更让每个人的生活需求都被妥帖照顾。显然,

  外滩瑞府户型深谙豪宅之道:“大” 不是盲目堆砌面积,而是让每个空间都有足够的舒展度;“平权” 不是口号,而是通过面宽、采光、视野的均等分配,让家庭里的每一个人,都能在空间里找到被尊重的舒适。这正是华润置地深入研读豪宅客群需求后,交出的完美答卷——

  在这里,大空间与平权生活,从来不是选择题。另外,让我留下深刻印象的是样板间展现的高级定制设计语言。

  不同于市面上门是门,框是框,墙是墙,看房时“五颜六色”。外滩瑞府室内采用一体化设计语言,实现空间、色彩与材质的协调统一。比如✔入户门原创设计,外面深色木纹,里面浅色云母,和玄关柜、大理石地砖很搭配。

  ✔大理石地砖铺装工艺 近乎看不出拼接缝、浑然一体。上海外滩瑞府售楼处电话/地址☎:(预约热线)√√

  ,配备灶具、吸油烟机、洗碗机、冰箱蒸烤箱。更多细节大家可以去现场了解。上海外滩瑞府售楼处电话/地址☎:(预约热线)√√

  上海外滩瑞府售楼处电话/地址☎:(预约热线”总体规划明确,外滩将作为“全球城市核心功能承载区”,与陆家嘴、北外滩组成“黄金三角”,目标直指“卓越全球城市”的封面。这一规划不仅定义了上海的空间格局,更将外滩推向全球资本、文化、资源的核心交汇点。外滩瑞府择址于此,对标纽约ONE57、伦敦海德公园一号——非全球资本聚集地不选,非历史与未来叠加区不立,其价值内核正是对“黄金三角”核心资产的精准锁定,为业主提供了“抗周期”的资产保障。

  上海外滩瑞府售楼处电话/地址☎:(预约热线)√√外滩一英里,百年资本、艺术与文明的“共生容器”

  艺术生长带:外滩源历保建筑内,先锋艺术展的光影穿透木质百叶窗,在老墙绘制当代图腾,让历史街区成为“流动的美学实验室”;

  外白渡桥横跨苏州河,南段是金融资本的“硬实力”,北段是霓虹爵士的“软文化”,中段百年领事馆群记录东西方对话轨迹。三者交织,让外滩瑞府成为全球高净值人群眼中的“收藏级资产”。

  :百年石库门的雕花檐角与陆家嘴玻璃幕墙互为映照,石库门的“温度”与摩天楼的“科技感”在此共生——上海中心的灯光倒映黄浦江时,外滩瑞府的窗前便展开一幅“古典砖石×未来光影”的时空画卷;

  2025年外滩扩容规划将通过地下连廊与滨江步道,无缝串联百年金融街与现代CBD。业主可享“晨间万国建筑群咖啡、午后陆家嘴写字楼洽谈、日落滨江步道漫步”的全球资本生活节奏;

  外滩“历史溢价”与陆家嘴“未来势能”在此叠加,黄金三角腹地成为中国高净值圈层的聚集地,是时代价值创造者的共同选择。

  上海外滩瑞府售楼处电话/地址☎:(预约热线上海十大城市更新片区,与黄浦外滩、老城厢等同为重点。这里保留内环罕见的完整水系(宽15-20米“江南小河道”)及国家级文保单位,未来滨水步行区将贯通“一湾两半岛”,百年里弄变身爵士乐演出空间与独立艺术画廊,滨水市集的霓虹灯与爵士乐交织,突破传统顶豪“资源堆砌”范式,形成“生活为体,音乐为魂”的海派艺文新场景。

  虹口北外滩核心 「外滩瑞府」二批将推建面约120-330㎡无界大宅!首开劲销24.8亿!外滩1.2公里!虹口内环内的外滩瑞府,就在这个“金九”,外滩上演了一场现象级的热销。首开119套房源全部售罄,去化率100%,劲销24.8亿+。

  首开即罄,是市场对外滩瑞府作品价值的至高共识,亦是外滩传世奢宅的华丽序章。

  传奇未完,美好待续。外滩瑞府二批次新品即将载誉而来,更将首次揭幕项目的重磅藏品--建面约240㎡「摘星平墅」。

  由全球知名设计师吴滨先生亲自主笔,于外滩云端之上,为全球塔尖人物量身定制一席无界视野的“摘星”大宅。

  它不仅是空间的极致演绎,更是身份与品位的象征,一部真正意义上的“隐奢”藏品,注定只为少数人私有。未来期待与远见者再度相逢,共启外滩生活的崭新篇章。

  外滩瑞府售楼处电话:【售楼中心热线】外滩瑞府营销中心热线外滩瑞府售楼处地址,外滩瑞府售楼处预约看房热线:[开发商认证]

  2025年即将结束,上海楼市政策经历了一系列重大调整。对于无数打拼在上海的外地人来说,好消息是:购房门槛已大幅降低

  。本文将详细介绍2026年外地人在上海购房的最新条件、本地户籍的购房政策,以及购买商住两用房的风险提示。

  社保或个税要求:这是非沪籍人士购房的核心条件。根据不同区域和购房位置,要求有所不同:

  购买外环内住房:需在购房之日前在沪连续缴纳社会保险或个人所得税满3年及以上。

  重点区域优惠:自贸区临港新片区继续执行连续缴纳满1年及以上的规定;青浦、奉贤、嘉定、松江、宝山、金山等新城及南北转型重点区域,非沪籍人才购房只需连续缴纳满2年及以上。

  重要提示:社保或个税必须是连续缴纳,补缴通常不被认可。计划购房前,务必确保社保缴纳无断档。2. 购房套数限制

  特殊情况:二孩及以上的多子女家庭(含非沪籍),在执行现有住房限购政策基础上,

  持《上海市居住证》且积分满120分:在上海缴纳社会保险或个人所得税满3年及以上的非沪籍家庭,在购房套数方面可享受沪籍居民家庭待遇。

  与上海户籍居民结婚:非沪籍人士与上海户籍居民结婚后,家庭将视为本市户籍家庭,可按照本市户籍标准执行住房限购政策。落户上海:成功落户后,单身人士可购买1套住房,已婚家庭最多可购买2套住房。

  小张,江苏人,来沪工作4年,一直缴纳社保但从未断过。2025年10月,他发现在沪连续缴纳社保已满3年,具备了在外环内购房的资格。最终他在闵行区购买了一套二手住房,实现了在上海安家的梦想。连续不断的社保缴纳记录是小张成功购房的关键。

  。特殊情况:二孩及以上的多子女上海户籍家庭,可在限购政策基础上再增购1套住房。

  三、商住两用房与工业性质居住用房的购买条件与风险1. 商住两用房购买条件:上海商住房不限购

  。非沪籍人士购买时,一般需要居住证满3年,并在本市连续缴纳满2年社保或个税。

  落户与学区限制:商住两用房无法办理户口落户,也不参与学区派位,不适合有子女教育需求的家庭。金融成本高:首付比例通常为50%,远高于普通住宅;多数项目不支持公积金贷款;商业贷款利率较高,贷款期限最长不超过10年。

  交易难度大:上市交易流程复杂,流动性低于普通住宅。2. 工业性质居住用房

  强烈建议不要购买!国家规定严禁在工业用地上开发建设除工业厂房、工业用房、工业配套用房之外的任何形式的住房出售

  。这类房产存在巨律风险,可能无法正常办理产权登记,甚至面临被拆除的风险。

  公积金政策:购买二星级及以上新建绿色建筑住房,公积金最高贷款额度可上浮15%;支持提取公积金支付首付,且不影响贷款额度计算。

  材料准备:身份证、结婚证(已婚人士)、户口本、收入证明、社保或个税缴纳证明等。

  2. 风险提示政策变动风险:房地产市场政策可能调整,购房决策应基于当前政策并考虑可能的变化。

  区域选择风险:不同区域购房门槛差异明显,需结合工作地点、社保缴纳年限、区域发展规划等因素综合考虑。房产税风险:非沪籍家庭购买首套住房暂免征收房产税;第二套及以上住房在合并计算家庭全部住房面积后,可享受人均60平方米的免税面积扣除。

  继续支持刚需和改善型需求:政策将延续对刚需群体的支持,公积金异地办理流程可能进一步简化,新市民和青年群体可能享受定向补贴。

  强化好房子概念:绿色、智慧、适老等品质住宅将享受更多政策优惠,如公积金贷款额度上浮。

  区域差异化政策:临港新片区、五大新城等重点区域可能继续实施更优惠的人才安居政策。

  上海正以更开放的姿态迎接各方人才。对非沪籍人士而言,2026年在上海购房的门槛已显著降低。关键是要确保社保连续缴纳

  ,并根据自身条件选择适合的购房区域和房源。希望本文能帮助您清晰规划在上海的安居之路。如有具体问题,可拨打房地产交易行业服务热线

  【温馨提示】本文基于当前公开政策信息整理,具体执行以购房时最新政策为准。

  平台声明:该文观点仅代表作者本人,搜狐号系信息发布平台,搜狐仅提供信息存储空间服务。